Matrix salon – SaySanaa

ШҮР МЭТ ГОО ҮЗЭСГЭЛЭНД ТАНЬ

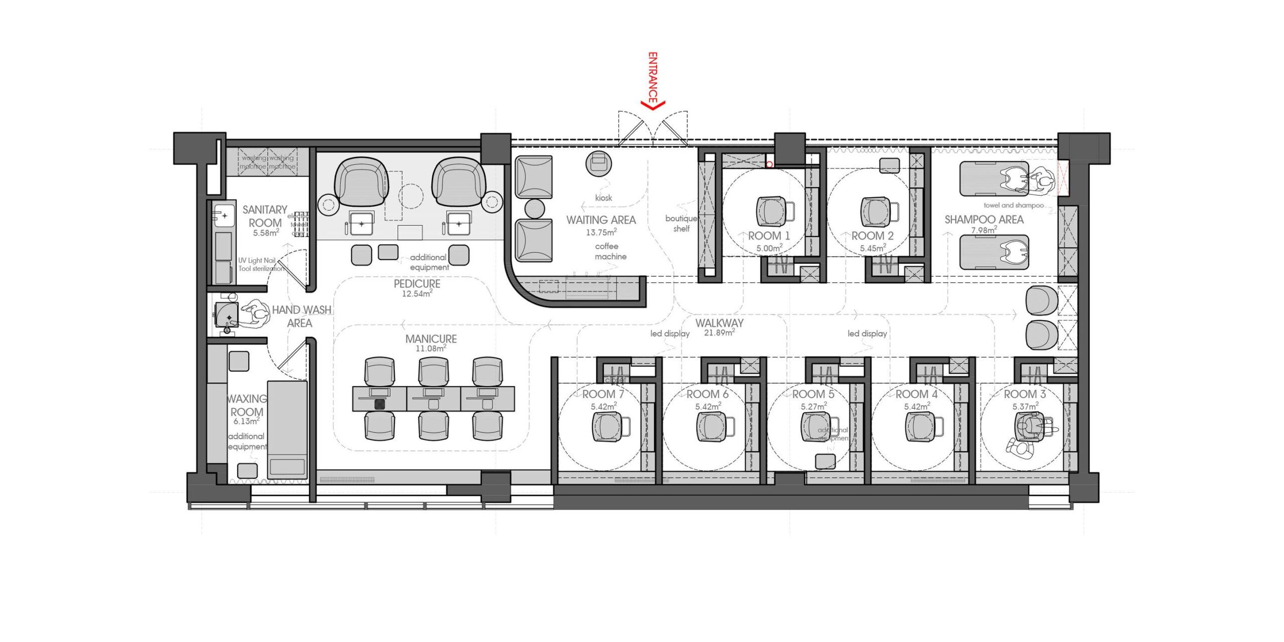
Мөнгөлөг саарал өнгө зонхилох минимал модерн энэхүү интерьерт цор ганц өнгө тодоос тод туяаран гэрэлтэнэ. Энэ бол шүрийн улаан өнгө. Монголчууд тэр дундаа бүсгүйчүүдийн гэзэг үс, толгойн гоёлын нэн тэргүүнд энэхүү эрдэнэ сонгогдсоор, гоо үзэсгэлэнг тодотгосоор ирсэн билээ. Шүрийн улаавтар өнгөний цаана эрх ямба, гоо үзэсгэлэн, ариун нандин тэр бүү хэл муу бүхний эсрэг хамгаалалт ч нуугддаг. Тэгвэл “Matrix” салоны интерьер дизайнаас та бүхэн дээрх гоозүйн уламжлалт ойлголтыг мэдрэхээс гадна энэ нь өдгөө хэрхэн хувирч сайхныг бүтээхэд дизайн ямар чухал болсныг өөрийн биеэр хүртэнэ. Үүдээр ормогцоо та эмх цэгцийн оронд нэвтрэх бөгөөд өөрийн гоо үзэсгэлэнгээ тэдэнд даатгаад шүр мэт өнгийн буйдан дээр тухлангаа дотоод дуу хоолойгоо илүү нарийн анирдах боломжтой. Хурц гэрэлгүй, бодол санаа сарниулах олон өнгөгүй гагцхүү чухалд анхаарах энэхүү “beauty bar”-аар үйлчлүүлэх бүртээ өөрийн шүр мэт гоо үзэсгэлэнгээ тордохоос гадна, чихэнд хуучир хөгжмийн аяз сонсогдох мэт тийм нам гүмд нэвчин орно. Хөлөө тавьсан эхний алхмаасаа, гараа өгсөн дараагийн үйлдлээсээ, үсээ задгайлсан тэр мөчөөсөө, гоо үзэсгэлэнгээ даатгасан тэр цагаасаа, өөртөө зарцуулсан хором бүрээсээ амар амгаланг олж, дотоод хүчээ сэлбэх болтугай хэмээн таны шүр мэт гоо үзэсгэлэнд зориулан СаяСанаа ийн бүтээлээ.

  • Location:

    Ulaanbaatar, Mongolia
  • Date:

    2025.06.21
  • Team:

    SaySanaa
  • Matrix 1
    Matrix 2
    Matrix 3
    Matrix 4
    Matrix 5
    Matrix 6
    Matrix 7
    Matrix 8
    Matrix 9
    Matrix 13
    Matrix 10
    Matrix 11
    Matrix 12
    Matrix 14
    Matrix 15
    Matrix 16
    Matrix 17
    Matrix 18